ПРОЕКТ «БАНЯ»

Локация: Московская область, городской округ Люберцы.
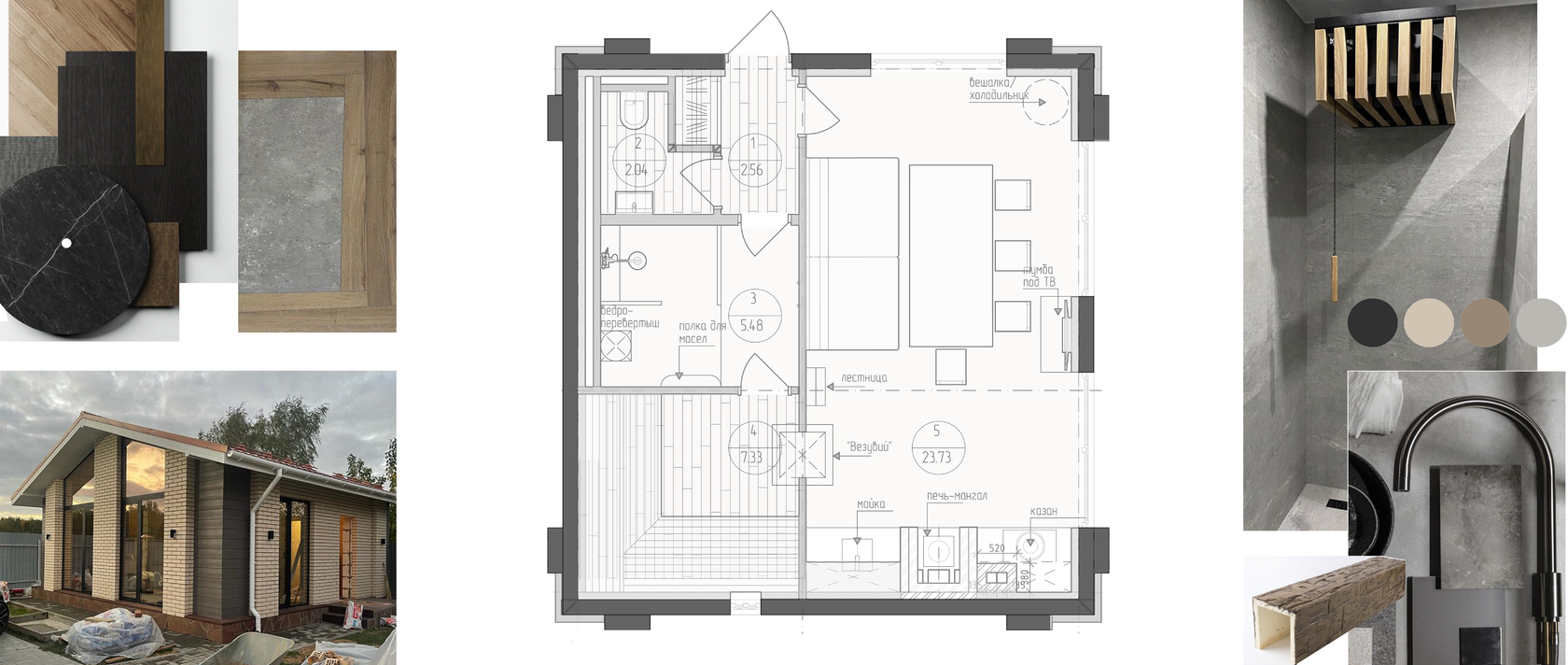
Площадь: 41,14 м2.

ФАСАД ЗДАНИЯ

ПОМЕЩЕНИЕ: ПРИХОЖАЯ

ПОМЕЩЕНИЕ: ГОСТИНАЯ

ПОМЕЩЕНИЕ: САНУЗЕЛ, ДУШЕВАЯ

ПОМЕЩЕНИЕ: ПАРИЛКА

Телефон: 8 (916) 449-94-94
Email: info@roarkarch.ru
Made on
Tilda